일반구조용 각형강관
Carbon steel square pipes for general structural purposes
토목, 건축 및 기타 구조물에 사용하는 각형강관
SQUARE, RECTANGULAR(정사각,직사각) PIPE
제품규격 |
1.4 |
KS(1.6) |
2.0 |
KS(2.3) |
2.9 |
KS(3.2) |
KS(4.0) |
100x100 |
|
|
|
|
|
|
|
125x75 |
|
|
|
|
|
|
|
75x75 |
|
|
|
|
|
|
|
100x50 |
|
|
|
|
|
|
|
60x60 |
|
|
|
|
|
|
|
75x45 |
|
|
|
|
|
|
|
50x50 |
|
|
|
|
|
|
|
40x40 |
|
|
|
|
|
|
|
50x30 |
|
|
|
|
|
|
|
30x30 |
|
|
|
|
|
|
|
40x20 |
|
|
|
|
|
|
|
25x25 |
|
|
|
|
|
|
|
30x20 |
|
|
|
|
|
|
|
19x19 |
|
|
|
|
|
|
|
15x15 |
|
|
|
|
|
|
|
* 두께 및 길이, KS제품은 사전 협의를 통해 납기 가능
제품규격 |
수량 |
가로x세로 |
|
100x100 |
25 |
5x5 |
![]() |
125x75 |
24 |
4x6 |
|
75x75 |
42 |
7x6 |
|
100x50 |
50 |
5x10 |
|
60x60 |
64 |
8x8 |
아연(GI)각관 |
75x45 |
70 |
7x10 |
![]() |
50x50 |
100 |
10x10 |
|
40x40 |
144 |
12x12 |
|
50x30 |
150 |
10x15 |
|
30x30 |
150 |
15x10 |
블랙(HR)각관 |
40x20 |
150 |
10x15 |
![]() |
25x25 |
192 |
16x12 |
|
30x20 |
210 |
14x15 |
|
19x19 |
300 |
20x15 |
|
15x15 |
300 |
20x15 |
칼라(COLOR)각관 |
<종류의 기호 및 화학성분, 기계적 성질>
| 종류의 기호(종래 기호) | 화학 성분 % | ||||||
| C | Si | Mn | P | S | |||
| SRT275 (SPSR 400) | 0.25 이하 | - | - | 0.04 이하 | 0.04 이하 | ||
| 기계적 성질 | |||||||
| 항복점(항복강도) N/㎟ | 인장강도 N/㎟ | 연신율 % | |||||
| 275 이상 | 410 이상 | 23 이상 | |||||
<치수의 허용차>
| 항목 및 치수의 구분 | 치수 및 각도의 허용차 | |
변의 길이 |
100 mm 이하 |
±1.5mm |
100 mm 초과 |
±1.5% |
|
각 변의 평판 부분의 요철 |
변의 길이 100mm 이하 |
0.5 mm 이하 |
변의 길이 100mm 초과 |
변 길이의 0.5% 이하 |
|
인접 평판 부분 사이의 각도 |
±1.5° |
|
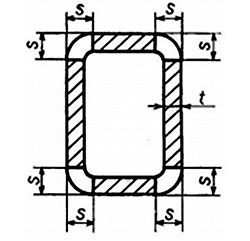
각 부의 치수 : S |
3t 이하 |
|
길이 |
+ 제한없음 |
|
휨 |
전체 길이의 0.3% 이하 |
|
두께 |
용접에 의해 제조한 관 |
3mm 미만 ±0.3mm |
3mm 이상 ±10% |
||
t : 평판 부분의 두께 S : 각 부의 치수 |
||

